Quadrilocale in vendita

Parma, Via brambilla
€ 215.000
4 locali 4 locali
110 Mq 110 Mq
1 bagno 1 bagno

Quadrilocale in vendita

Parma, Via brambilla

Descrizione annuncio

TECNORETE MONTEBELLO

PROPONE IN ESCLUSIVA

Nel cuore di Parma, proponiamo un appartamento in vendita che offre una soluzione abitativa pratica e funzionale.

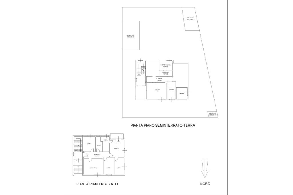
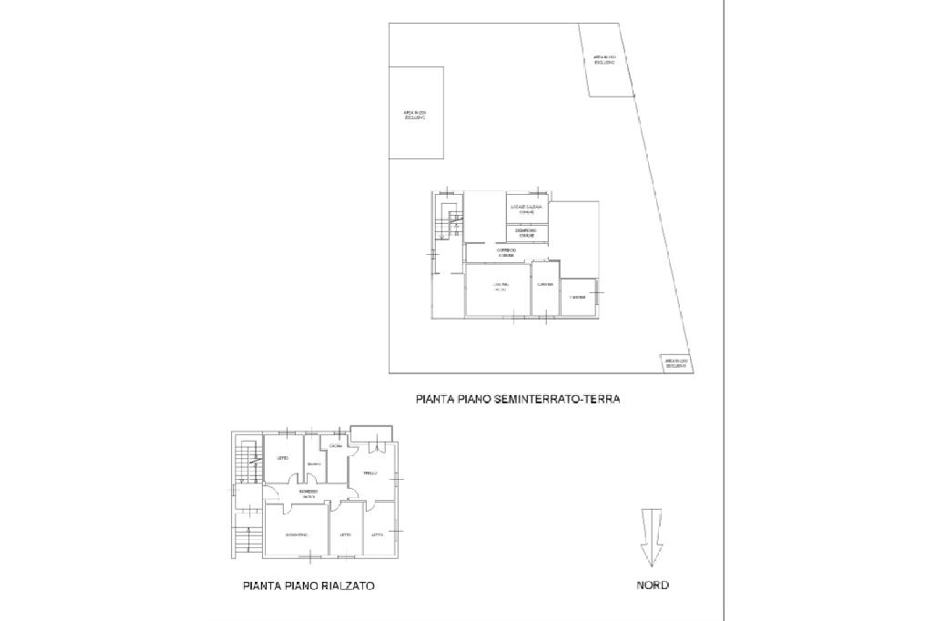
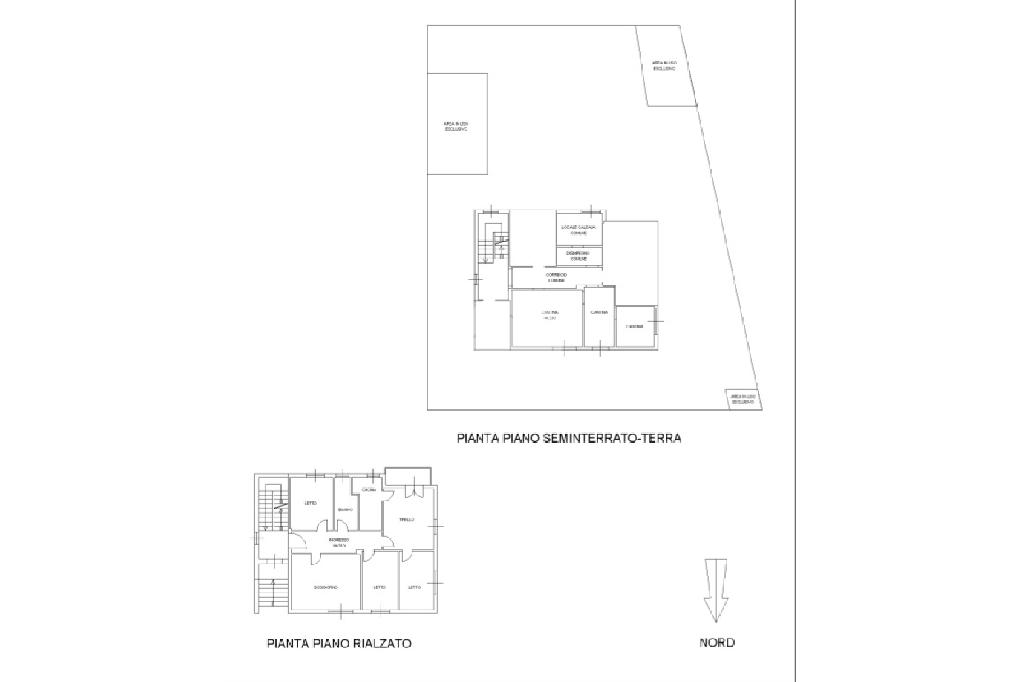
Situato al piano rialzato di un edificio costruito nel 1970, l'immobile si estende su una superficie di 110 mq, suddivisi in quattro locali ben distribuiti.

La disposizione interna comprende un ampio soggiorno, una cucina abitabile, tre camere da letto e un bagno.

Gli spazi sono luminosi e ben organizzati, ideali per chi cerca comfort e praticità. La posizione strategica consente di raggiungere facilmente i principali servizi e le aree verdi della città, rendendo questa proposta interessante per famiglie e professionisti.

L'appartamento rappresenta un'opportunità per chi desidera vivere in una zona tranquilla ma ben collegata, con la possibilità di personalizzare gli ambienti secondo le proprie esigenze.

A completare la proprietà posto auto e tre cantine.

CERTIFICAZIONE ENERGETICA IN FASE DI RILASCIO

REFERENTE GERARDO

Mostra tutto

Nelle vicinanze

Trasporto pubblico Trasporto pubblico
stazione di Parma
stazione di Parma
2,7 Km
via Bizzozero
via Bizzozero
460 m
via Montebello Posta
via Montebello Posta
630 m
Ricariche auto elettriche Ricariche auto elettriche
Eneldrive Cittadella
900 m
Eneldrive Calamandrei
1,5 Km
IrenGo Istituto Comprensivo Parmigianino
1,7 Km
Eneldrive Della Steccata
1,9 Km
Eneldrive Vittoria
2,3 Km
Scuole Scuole
Don Milani
560 m
Scuola Elementare "Don Milani"
570 m
Convitto Nazionale Maria Luigia
1,2 Km
Università civiltà linguistica E Letteratura
1,3 Km
Scuola primaria "Rodari"
1,5 Km
Farmacia Farmacia
Farmacia Montebello
270 m
Farmacia
760 m
Farmacia Amadasi
860 m
Farmacia Stadio Tardini
950 m
Farmacia Zarotto
1,0 Km
Ospedali Ospedali
Casa di Cura Città di Parma
350 m
Piccole Figlie Hospital
1,3 Km
Casa della Salute Pintor-Molinetto
1,6 Km
Casa della Salute Parma Centro
2,2 Km
Guardia Medica
2,4 Km
Supermercati Supermercati
CRAI Bossi
350 m
Supermercati
420 m
Esselunga
890 m
IN's
1,1 Km
Ipercoop
1,2 Km
Negozi Negozi
Negozi
70 m
Nuova Beccheria
170 m
Il pane di Luciano
190 m
Gastronomia
220 m
Gelateria
860 m
Bar Bar
Paninoteca
50 m
Bar di Viazzani
70 m
Caffetteria Topkapi
140 m
Bar
360 m
Lostello
680 m
Ristoranti Ristoranti
San Marté
320 m
Trattoria I Du Matt
410 m
Tirolesina
520 m
Pizzeria ORFEO
740 m
Ristorante Pizzeria Zeffiro
890 m
Mostra tutto

Caratteristiche

Rif.:
61132121
Piano:
Rialzato di 3
Totale piani:
3
Posti auto:
1
Balconi:
1
Camere da letto:
3
Mostra tutto
Prezzo Prezzo
€ 215.000
Rata mutuo Rata mutuo
€ 991 / mese
Spese annue Spese annue
€ 1.300
Proponi il tuo prezzoProponi il tuo prezzo

Classe Energetica

Questo immobile è esente da classe energetica
Anno di costruzione:
1970
Riscaldamento:
Centralizzato
Tipo impianto:
A radiatori
Tipo alimentazione:
Metano

Ti interessa visionare l'immobile?

Fissa un appuntamento  Fissa un appuntamento

Richiedi informazioni

* Questi campi sono obbligatori

Calcola il tuo mutuo

Semplice e senza impegno
Anticipo

( % )
Mutuo

( % )

pochi semplici passi

inserisci i tuoi dati
Questionario completato
Grazie per aver richiesto un appuntamento senza impegno con un nostro Consulente del Credito e Assicurativo.

Hai inserito correttamente tutti i dati necessari e a breve riceverai una e-mail con un link da convalidare per inviare i tuoi dati.
Affiliato
Studio Colorno Srlu
Via Montebello, 83/A 43100 Parma (PR)

Il nostro staff


  • Filippo Natalino
    Affiliato

  • Luigi Robertella
    Collaboratore

  • Tommaso Degli Antoni
    Collaboratore

  • Gerardo Giancola
    Responsabile

  • Gianluca Labadini
    Collaboratore
Via Montebello, 83/A 43100 Parma (PR)
Zona: Bizzozero-Cittadella-Montebello-Eurosia
Mostra su mappa
Orari: dal lunedì al venerdì: 9:00 - 13:00 / 15:00 - 19:00 Sabato: 9:30 - 12:30 / 15:30 - 18:00
Affiliato
Studio Colorno Srlu
Via Montebello, 83/A 43100 Parma (PR)

2025 Tecnocasa Franchising S.p.A. - P. IVA 08365160152 - Via Monte Bianco 60/A 20089 Rozzano (MI). Ogni agenzia ha un proprio titolare ed è autonoma. Privacy policy | Policy utilizzo | Cookie policy